
Gebäude, die mitwachsen
Bauwerksbegrünung als Aspekt der Nachhaltigkeit
Rückruf anfordern
Kontaktieren Sie uns direkt. Unser Team ist für Sie da.
Jetzt starten
Kontaktieren Sie uns direkt. Unser Team ist für Sie da.
Downloads
Die wichtigsten Downloads auf einen Blick.
Studierende der FH Gummersbach entwickeln Studentenwohnheim in Modulbauweise.
Studierende wünschen sich beim Wohnen eine Balance aus Privatsphäre und Gemeinschaftsraum, bezahlbare Mieten, aber auch ein ansprechendes Ambiente – Anforderungen, die in Modulbauweise optimal und zudem wirtschaftlich umgesetzt werden können. Wie ein solches, nach Studentenwünschen konzipiertes Wohnheim in der Praxis aussehen könnte, zeigten 16 Masterstudenten des interdisziplinären Studiengangs „Produktdesign und Prozessentwicklung“ (PRODES) der Fachhochschule Köln (FH), Campus Gummersbach.
Die FH Köln bietet seit 2008 den bundesweit einzigartigen Masterstudiengang „Produktdesign und Prozessentwicklung“ an. Er ist ein Kooperationsangebot der Gummersbacher Fakultät der FH Köln und des Instituts „KISD – Köln International School of Design“, das ebenfalls zur FH Köln gehört. Ansprechpartner sind die Professoren Dr. Thomas Münster am Campus Gummersbach und Wolfgang Laubersheimer, Direktor an der KISD.
Das viersemestrige Studium ist stark praxisbezogen. So arbeiten die Studierenden, die jeweils unterschiedliche Studiengänge in den Bereichen Ingenieurwissenschaften, Design und Betriebswirtschaft abgeschlossen haben, im ersten Semester intensiv in einem großen Projekt zusammen. Dabei werden Wissen und Lösungsstrategien zwischen den Disziplinen ausgetauscht. Das Ergebnis der diesjährigen Projektarbeit wurde am 5. Februar 2015 in einer ausgesprochen professionellen Präsentation auf dem Campus Gummersbach der Öffentlichkeit vorgestellt.
Die Projektaufgabe der 16 Masterstudenten des Wintersemesters 2014/2015 bestand darin, mit Unterstützung von ALHO ein Studentenwohnheim in Modulbauweise für ein 3.800 qm großes in unmittelbarer Nähe zum Campus gelegenes Grundstück zu konzipieren.
Um diese Aufgabe interdisziplinär und unter verschiedenen Blickwinkeln zu lösen, teilten sich die Studentinnen und Studenten in drei Projektgruppen auf. Eine Gruppe befasste sich mit den technischen Rahmenbedingungen des Modulbaus, mit dem Planungsraster, bauphysikalischen Eigenschaften, aber auch mit Vorgaben, die sich aus städtebaulichen Aspekten ergeben. Eine zweite Gruppe konzentrierte sich auf das Design und somit auf die Gestaltungsmöglichkeiten von Fassaden und Innenräumen.
Ergänzend beleuchtete die dritte Gruppe die wirtschaftlichen Faktoren, da der konzipierte Wohnraum für Studierende und Investoren gleichermaßen attraktiv sein soll.
Um die Anforderungen an das studentische Wohnen definieren zu können, führte die Projektgruppe zunächst eine Befragung am Campus durch. Die Ergebnisse, u.a. die Aufteilung in private und gemeinschaftliche Zonen oder wieviel Budget einem Studenten fürs Wohnen zur Verfügung steht, flossen in die Konzeption des Wohnheims ein.
„Im Grenzbereich zwischen Architektur und Design standen die Bedürfnisse der Nutzer im Vordergrund. Wir haben eine andere Perspektive eingenommen als die Profis und haben so zwangsläufig andere Lösungen gefunden“, sagte Prof. Wolfgang Laubersheimer. „Es ist dem Team hervorragend gelungen, die Balance zwischen Baurecht, technischer Machbarkeit, Wohnlichkeit und Wirtschaftlichkeit zu finden“, beurteilte Prof. Dr. Thomas Münster, Studiengangsmanager für „Produktdesign und Prozessentwicklung“ die Arbeit seiner Studierenden.
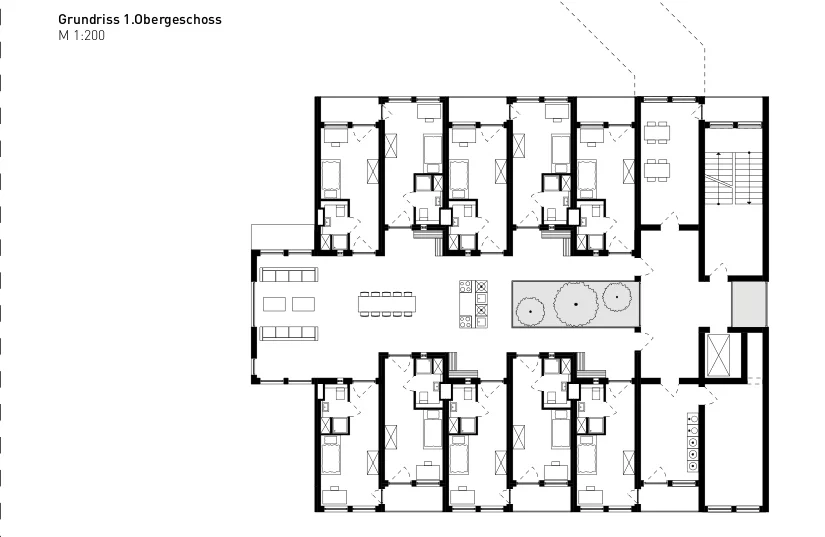
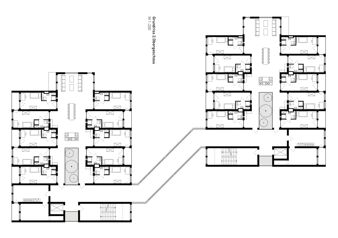
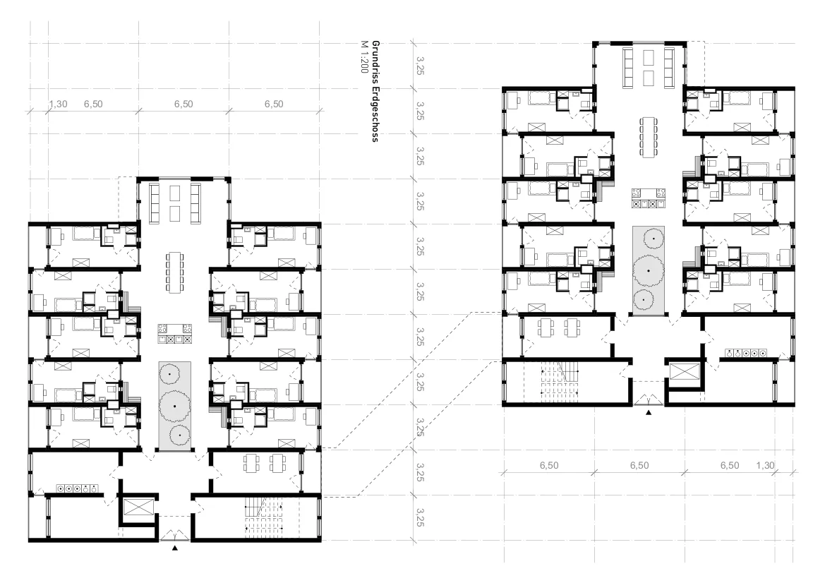
Das Modell des Wohnheims zeigt zwei viergeschossige, würfelförmige Baukörper, die durch eine verglaste Brücke in der zweiten Etage verbunden sind. Der Grundriss basiert konsequent auf einem Modulraster von 3,25 x 6 m, bzw. 3,25 x 12 m. Jede Etage setzt sich aus 15 Modulen zusammen - ein Gebäudekubus besteht somit aus 60 Raumzellen. Die Idee für diesen Grundriss sei direkt aus dem „modularen Baukastensystem“ der Firma ALHO entstanden, berichteten die Studierenden. „Der Modulbau als standardisierte Bauweise bietet letztlich sehr viel Raum für Kreativität“, bestätigt Dipl. Ing. Architekt Michael Lauer, Vertriebsleiter Nord der ALHO Systembau, der den Studierenden persönlich mit fachlichem Rat zur Seite stand.
Jede Etage des Modulgebäudes beherbergt eine Wohngemeinschaft mit 10 Personen, insgesamt können also 80 Personen in dem Wohnheim untergebracht werden. Um einen großzügigen Küchen-, Ess- und Wohnbereich gruppieren sich die jeweils 17 qm großen Schlafräume – alle mit eigenem Bad. Der Wohnbereich geht in einen auskragenden, mit großen Fensterflächen versehenen und nach Süden gelegenen Lounge-Bereich über.
Am anderen Ende des Gemeinschaftsraums sorgt ein durch alle Stockwerke verlaufender, begrünter Lichtschacht für weiteren Tageslichteinfall, so dass tagsüber keine zusätzlichen Lichtquellen benötigt werden – ein Baustein in Sachen Wirtschaftlichkeit. Komplettiert wird das Raumprogramm durch einen Wasch-Trockenraum und einen Raum zum gemeinschaftlichen Lernen.
Die Privaträume sind je Geschoss unterschiedlich leicht versetzt angeordnet und schaffen so außen Raum für Loggien und innen Staufläche und Nischen für Schränke. Das Wechselspiel der querformatigen Öffnungen der Loggien und der hochformatigen, bodentiefen Fenster schafft eine spannungsvolle Fassade. Diese wird noch dazu durch die verwendeten Materialien verstärkt: Die Fassadenverkleidung besteht aus Cortenstahl - einem gewollt selbstrostenden Material, das sich häufig auf dem ehemaligen Steinmüller-Gelände, auf dem die FH angesiedelt ist, wiederfindet und das an die Industrie-Vergangenheit des Areals erinnert. Eine pulsierende LED-Lichtinstallation unterbricht die unregelmäßig geformten und angeordneten Stahlelemente und verleiht der Fassade mit dieser Lichtchoreografie einen „eigenen Herzschlag“ zu später Abendstunde. Im Kontrast dazu stehen begrünte Wandflächen des Erkers, die einen Naturbezug schaffen und für ein angenehmes Wohnklima sorgen.
Teilen Sie diesen Artikel gerne