
Gestaltungsmöglichkeiten im Modulbau
Grundrisse, Maße, Raumaufteilung und Fassaden
Demandé un rappel
Veuillez nous contacter directement. Notre équipe est là pour vous aider.
Commencez dès maintenant
Veuillez nous contacter directement. Notre équipe est là pour vous aider.
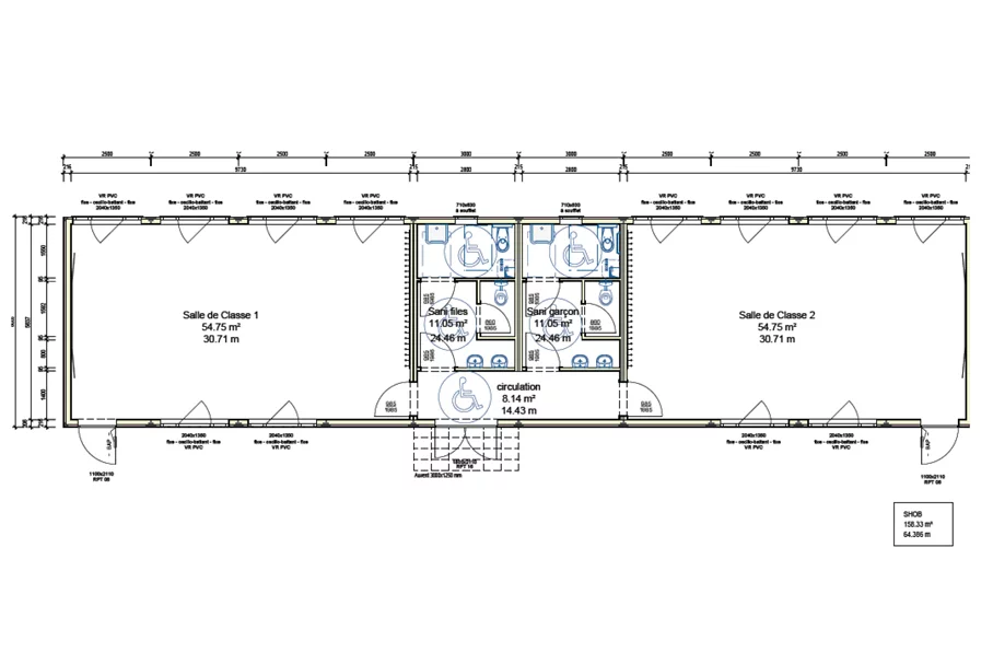
Je suis la solution clés en main de ProContain pour disposer très rapidement deux nouvelles salles de classe accompagnées de sanitaires pour les filles et pour les garçons.
Nous proposons en plus différentes variantes qui peuvent être étudiées selon vos souhaits, comme par exemple un bardage bois ou composite, ou une adaptation des équipements à la petite enfance.
Les situations et les besoins de vos écoles évoluent ( Accroissement des effectifs scolaires ; Nouvelles règles d’accueil des programmes REP et REP+ ; Vieillissement des bâtiments existants qui doivent être remplacés, ... ) et peuvent vous conduire à envisager la construction de nouveaux bâtiments ou de nouvelles salles de classe. Avec les écoles modulaires ProContain vous offrirez aux enfants et aux personnels les meilleures conditions de travail. Vous bénéficierez de délais de mise en œuvre courts et investirez dans des bâtiments durables et de qualité : nos écoles modulaires sauront répondre à vos exigences !
Régulièrement audités, nos bâtiments modulaires sont certifiés conformes aux règlementations de sécurité incendie, de performance acoustique, d’isolation thermique et de consommation énergétique. Exempts de substances nocives, les matériaux sont sélectionnés pour leurs propriétés écologiques et leurs labels, un gage de qualité irréprochable.
C'est tout l'avantage de nos solutions de construction hors-site de pouvoir vous livrer rapidement des salles de classe directement opérationnelles, confortables et sécurisées.
Notre équipe d'experts, implantée en Île-de-France, est réactive et à votre écoute pour vous apporter une réponse personnalisée.
Contactez Nicolas Rautureau au 06.11.98.52.75 ou .
22.05.2018
Gestaltungsmöglichkeiten im Modulbau
Grundrisse, Maße, Raumaufteilung und Fassaden
01.11.2021
Schulgebäude der Zukunft planen und gestalten
Flexible Grundrisse unterstützen moderne pädagogische Konzepte
05.10.2018
Baukosten im Modulbau
Was kostet ein Bürogebäude, Kindergarten, Krankenhaus etc. in Modulbauweise?
29.11.2016
EnEV-Nachweis und Berechnung im Modulbau
Korrekte Werte beim EnEV-Nachweis sind Ehrensache
16.04.2025
Das ALHO Webinar
Wissen teilen. Perspektiven eröffnen
18.03.2025
Unsere Experten für nachhaltiges Energiemanagement
Neue PV-Anlage in Friesenhagen geht ans Netz
12.04.2024
Deutschlands erstes Modulgebäude mit grünem Stahl
Baustellenbesichtigung des Heisenberg Gymnasiums Dortmund
15.01.2024
Die Entscheidung für die Modulbauweise
Paul Johannes Fietz über das Bauen mit ALHO
30.11.2022
ALHO „Wohnungsbaukasten“
Passgenaue Lösungen für schnellen Wohnungsbau mit hoher Qualität
22.11.2023
Smart Building – Smart Home
Modulbau und smarte Gebäudetechnik passen optimal zusammen
05.03.2024
Ein Meilenstein für den Wohnungsbau
Serielles und modulares Bauen 2.0
06.02.2023
Mit Modulbauweise aus der Wohnraumkrise
Die Zukunft des Wohnens
09.02.2023
DETAIL Modulbau-Buch
Planen und Bauen mit Raummodulen - Erfahrungen aus der Praxis für die Praxis
21.03.2023
ALHO: Schritt für Schritt in die digitale Modulbau-Zukunft
Digitale Transformation
08.03.2023
Mit der ALHO Modulbauweise die Ressourceneffizienz im Bauwesen steigern
Ressourcen und Recycling
19.09.2022
Mehr Fortschritt wagen mit Modularchitektur
Mit ALHO Bauprojekte schneller planen und umsetzen
30.11.2022
Digitale Produktion: Automatische Werkplanung
Mehr Effizienz in der modularen Gebäudefertigung
08.09.2016
Modulbau versus Containerbau
Ein Vergleich zwischen Äpfeln und Birnen
29.11.2021
Baugenehmigung, Bauantrag, Bauvoranfrage
Was ist eine Baugenehmigung und wofür brauche ich sie? Hier erfahren Sie die wichtigsten Fakten
15.05.2024
Temporären Raum nutzen statt Immobilien kaufen
In Zeiten von unbeständigen Märkten und ungewissen Wirtschaftsaussichten ist die langfristige Kapitalbindung durch Investitionen in Immobilien eine herausfordernde Entscheidung.
14.06.2025
Update zum Hallenbau in Lichtenberg
Vor zwei Wochen haben wir den Innenausbau unserer neuen Produktionshalle in Angriff genommen. Ein besonderes Highlight war gleich zu Beginn die Installation der ersten Krananlagen der ABUS Kransysteme GmbH.
29.08.2013
Abteilungen schnell und effizient zusammengeführt
Neubau Bürogebäude PHOENIX
06.11.2013
ALHO Pressetag Kreisklinikum Siegen
Modulbau zum "Be-Greifen"
14.10.2022
Mobile Solar-Module für Baustellencontainer
Den wachsenden Energiebedarf zu decken und gleichzeitig einen Beitrag zur globalen Energiewende zu leisten, ist eine der größten Herausforderungen unserer Zeit.
12.02.2025
Les modules préfabriqués : la clé d’une construction rapide et durable
Face à des défis croissants tels que la réduction des délais de construction, l’optimisation des coûts et la transition écologique, les bâtiments modulaires se positionnent comme une solution incontournable.
19.02.2015
Schwerpunkt Fassade
Gestaltungsmöglichkeiten im Modulbau: ALHO Modul-Architektur
01.07.2017
Optimale Raumakustik im Büro
Grundlage für ein angenehmes und produktives Arbeitsumfeld
05.10.2018
Baulicher Brandschutz im Modulbau
Was ist bei Modulgebäuden zu beachten?
29.11.2021
Das modulare Bauen – ein kollaborativer Prozess
Wie gehen Standardisierung und Gestaltungsfreiheit zusammen?
25.05.2022
Nachholbedarf für bezahlbaren Wohnraum
Mehr Mut zum Modulbau
26.02.2021
Schulen effizient planen und bauen
Der ALHO Modulbaukasten macht es möglich
01.11.2021
Grundriss und Architektur moderner Bürogebäude
Unterschiedliche Nutzung von Grundrissen eines Büros im Laufe der Zeit
19.05.2022
Digitalisierung in Deutschland
Die smarte Cluster-Schule kommt!
16.05.2019
Modulbauweise Wohn- und Einfamilienhaus
Modulbauweise im Wohnungsbau
25.05.2018
Energiestandards & Wärmebrücken im Modulbau
Welche Energiestandards sind in Modulbauweise realisierbar?
09.02.2021
Volvo: Bauhaus-Idee modern verwirklicht
Bauhaus-Idee modern verwirklicht – mit ALHO Modulbauweise
02.09.2014
Raumnot an Universitäten
Systematisch gut: Modulbau für Universitäten
08.09.2016
Neubau Agentur für Arbeit Köln
Kölner Arbeitsagentur baut mit ALHO am Butzweiler Hof
23.07.2024
Alles Fassade – auch bei temporären Gebäuden
12.05.2020
FAGSI ProCOMFORT – die neue Mietserie in Modulbauweise
22.11.2022
Architekten bauen temporär – mit FAGSI Qualitätscontainern
19.10.2021
Beim Bauen an die Zukunft denken!
14.10.2022
Mobile Solarlösung für Baustellencontainer
18.09.2023
Leitfaden für Architekten und Bauherren
05.01.2021
Merck: Viergeschossiger Büroneubau in Modulbauweise
Moderne Bürokonzepte: Viergeschossiger Büroneubau für Merck
15.04.2016
Serieller Wohnungsbau
Modulare, industrielle Konzepte für modernes Wohnen
12.08.2016
Interview Neubau Kita Kreischa
Eine Kita in nur 10 Wochen Bauzeit
06.01.2016
Interview serieller Wohnungsbau
Serieller Geschosswohnungsbau von ALHO
15.08.2018
Modulgebäude Bavaria Filmstudios
Frank Tosse, Bavaria Film GmbH, zum Modulbau mit ALHO
09.12.2020
Aktuelle Themen der Modulbau-Branche
Die neuen IMMOTIONS 2-2020 ist da!
29.09.2020
Erstes Projekt in Modulbauweise realisiert
Referenzfilm Bergische Diakonie Aprath
30.04.2021
So entsteht Modulbau - Rundgang durch unsere ALHO Raumfabrik
Virtueller Rundgang durch die Raumfabrik
21.01.2025
Bâtiments modulaires définitifs vs constructions permanentes traditionnelles
Quelle est la meilleure option?
23.01.2025
Applications de la construction modulaire
Des solutions sur mesure pour chaque secteur
10.01.2025
10 raisons pourquoi la construction préfabriquée est plus rapide que la construction traditionnelle
18.09.2017
Tendances pour les futurs bureaux
29.01.2017
Construction modulaire, maisons préfabriquées et containers
16.05.2016
RBR 2020 écrira le futur de la construction
06.12.2022
„Optimieren ist unser Fachgebiet“
ProContain setzt in Bezug auf die Qualitätskontrolle auf aktives Handeln und überlässt auch bei der Herstellung der Container nichts dem Zufall. Ein durchgängiges Qualitätsmanagement stellt dort mit einer Reihe organisatorischer Maßnahmen sicher, dass Mängel und Fehler von Anfang an vermieden werden.
05.07.2021
Containergebäude von ProContain
Hersteller für Bürocontainer, Wohncontainer und Baustellencontainer
19.01.2023
Die vorhabenbezogene Bauartgenehmigung (vBG) für Container
Wer in Deutschland ein Gebäude errichten möchte, benötigt dafür grundsätzlich und unabhängig von der Bauweise eine Baugenehmigung. Das Bauordnungsrecht steht in Deutschland unter der Hoheit der Bundesländer und wird von ihnen in den Landesbauordnungen geregelt. Dort sind die Rahmenbedingungen zur Erlangung einer Baugenehmigung festgelegt.
11.05.2023
Modernes und umweltfreundliches Arbeiten in neuer Produktionshalle
Die ProContain GmbH, ein Unternehmen der ALHO Gruppe, ist auf die Herstellung hochwertiger Raumsysteme für Fachhandel und Vermieter spezialisiert. Produziert werden derzeit pro Jahr rund 6.000 Qualitätscontainer „made in Germany“ an zwei Standorten in Deutschland - darunter im nordrhein-westfälischen Morsbach-Lichtenberg, dem Traditionsstandort der ALHO Gruppe.
19.07.2021
Aktuelle Themen der Modulbau-Branche finden Sie in der neuen schweizer IMMOTIONS!
ALHO ist ein verlässlicher Leistungspartner im Modulbau. Wir setzen Ihre Entwürfe und Vorgaben schnell und präzise um. Ob in einzelnen Leistungshasen oder im Gesamtpaket – das entscheiden, getreu dem Motto: „Alles kann, nichts muss.“, allein Sie als Kunde. Wie dies genau aussieht lesen Sie im HORIZONT.
30.04.2021
So entsteht Modulbau - Rundgang durch unsere ALHO Raumfabrik
Virtueller Rundgang durch die Raumfabrik
29.03.2021
Nachhaltige Industrie-Architektur: Hauptquartier für Team „Esch2022“
Die Europäische Kulturhauptstadt 2022 ist eigentlich eine ganze Region: Neben der zweitgrössten Luxemburger Stadt Esch sind zehn weitere umliegende Luxemburger Gemeinden sowie acht französische Gemeinden der Kommunalverwaltung in Audun-le-Tiche mit im Boot.
26.03.2021
Mit individuellen, seriellen Modulbauten die Wohnraumlücke schliessen
Als einer der ersten Hersteller von Gebäuden in Stahlmodulbauweise bietet das seit über 50 Jahren praktizierende Unternehmen mit dem „Kompetenz-Center Wohnungsbau“ ausgereifte Lösungen im Geschosswohnungsbau als Mietwohnungsbau an und beweist damit: Serielle Fertigung und Individualität schliessen sich bei der Modulbauweise nicht aus!
08.09.2016
Neubau Agentur für Arbeit Köln
Kölner Arbeitsagentur baut mit ALHO am Butzweiler Hof
16.05.2019
Modulbauweise Wohn- und Einfamilienhaus
Modulbauweise im Wohnungsbau
15.04.2016
Serieller Wohnungsbau
Modulare, industrielle Konzepte für modernes Wohnen
12.08.2016
Interview Neubau Kita Kreischa
Eine Kita in nur 10 Wochen Bauzeit
06.01.2016
Interview serieller Wohnungsbau
Serieller Geschosswohnungsbau von ALHO
15.08.2018
Modulgebäude Bavaria Filmstudios
Frank Tosse, Bavaria Film GmbH, zum Modulbau mit ALHO
29.09.2020
Erstes Projekt in Modulbauweise realisiert
Referenzfilm Bergische Diakonie Aprath
02.09.2014
Raumnot an Universitäten
Systematisch gut: Modulbau für Universitäten
09.02.2021
Volvo: Bauhaus-Idee modern verwirklicht
Bauhaus-Idee modern verwirklicht – mit ALHO Modulbauweise
25.05.2018
Energiestandards & Wärmebrücken im Modulbau
Welche Energiestandards sind in Modulbauweise realisierbar?
19.05.2022
Digitalisierung in Deutschland
Die smarte Cluster-Schule kommt!
01.11.2021
Grundriss und Architektur moderner Bürogebäude
Unterschiedliche Nutzung von Grundrissen eines Büros im Laufe der Zeit
22.05.2018
Gestaltungsmöglichkeiten im Modulbau
Grundrisse, Maße, Raumaufteilung und Fassaden
01.11.2021
Schulgebäude der Zukunft planen und gestalten
Flexible Grundrisse unterstützen moderne pädagogische Konzepte
05.10.2018
Baukosten im Modulbau
Was kostet ein Bürogebäude, Kindergarten, Krankenhaus etc. in Modulbauweise?
29.11.2016
EnEV-Nachweis und Berechnung im Modulbau
Korrekte Werte beim EnEV-Nachweis sind Ehrensache
16.04.2025
Das ALHO Webinar
Wissen teilen. Perspektiven eröffnen
12.04.2024
Deutschlands erstes Modulgebäude mit grünem Stahl
Baustellenbesichtigung des Heisenberg Gymnasiums Dortmund
14.06.2025
Update zum Hallenbau in Lichtenberg
Vor zwei Wochen haben wir den Innenausbau unserer neuen Produktionshalle in Angriff genommen. Ein besonderes Highlight war gleich zu Beginn die Installation der ersten Krananlagen der ABUS Kransysteme GmbH.
15.01.2024
Die Entscheidung für die Modulbauweise
Paul Johannes Fietz über das Bauen mit ALHO
30.11.2022
ALHO „Wohnungsbaukasten“
Passgenaue Lösungen für schnellen Wohnungsbau mit hoher Qualität
22.11.2023
Smart Building – Smart Home
Modulbau und smarte Gebäudetechnik passen optimal zusammen
05.03.2024
Ein Meilenstein für den Wohnungsbau
Serielles und modulares Bauen 2.0
06.02.2023
Mit Modulbauweise aus der Wohnraumkrise
Die Zukunft des Wohnens
09.02.2023
DETAIL Modulbau-Buch
Planen und Bauen mit Raummodulen - Erfahrungen aus der Praxis für die Praxis
21.03.2023
ALHO: Schritt für Schritt in die digitale Modulbau-Zukunft
Digitale Transformation
08.03.2023
Mit der ALHO Modulbauweise die Ressourceneffizienz im Bauwesen steigern
Ressourcen und Recycling
19.09.2022
Mehr Fortschritt wagen mit Modularchitektur
Mit ALHO Bauprojekte schneller planen und umsetzen
30.11.2022
Digitale Produktion: Automatische Werkplanung
Mehr Effizienz in der modularen Gebäudefertigung
08.09.2016
Modulbau versus Containerbau
Ein Vergleich zwischen Äpfeln und Birnen
29.11.2021
Baugenehmigung, Bauantrag, Bauvoranfrage
Was ist eine Baugenehmigung und wofür brauche ich sie? Hier erfahren Sie die wichtigsten Fakten
19.02.2015
Schwerpunkt Fassade
Gestaltungsmöglichkeiten im Modulbau: ALHO Modul-Architektur
Teilen Sie diesen Artikel gerne