
Gestaltungsmöglichkeiten im Modulbau
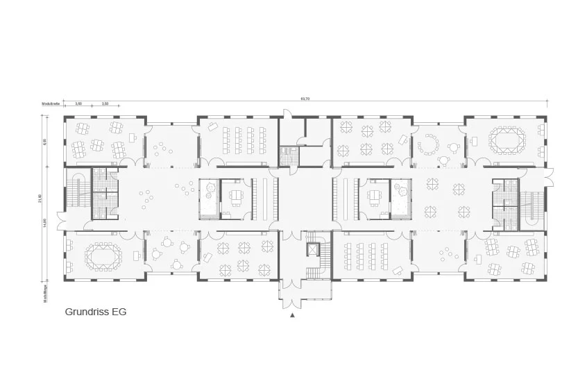
Grundrisse, Maße, Raumaufteilung und Fassaden
Rückruf anfordern
Kontaktieren Sie uns direkt. Unser Team ist für Sie da.
Jetzt starten
Kontaktieren Sie uns direkt. Unser Team ist für Sie da.
Downloads
Die wichtigsten Downloads auf einen Blick.
Der ALHO Modulbaukasten macht es möglich
Kommunale Entscheider, Pädagogen und Eltern sind sich einig: Neue Schulen braucht das Land, die zeitgemäße Bildung in hochwertiger Architektur ermöglichen und in denen sich Lehrer wie Schüler wohlfühlen. Und das möglichst schnell!
Doch wie soll man diese Gebäude – in großer Anzahl, in kurzer Zeit und noch dazu qualitätsvoll – bauen? Bei konventionell errichteten Schulbauten vergehen von der Planung bis zum Einzug oft Jahre. Wäre es daher nicht toll, wenn es eine Gebäudelösung gäbe, die schnell geplant und realisiert ist, die Anforderungen an langlebige Qualität erfüllt und noch dazu flexibel auf Veränderungen in der Zukunft regieren kann?
Mit dem Schulbaukasten von ALHO ist genau dies möglich: Gemeinsam mit dem Kölner Büro Hohlfeld Architektur hat ALHO ein Baukastensystem entwickelt, mit dem individuelle Typenschulen in unterschiedlichen Größen und mit variierendem Raumprogramm konzipiert und in Modulbauweise – und somit in 70 % kürzerer Zeit im Vergleich zur konventionellen Bauweise – realisiert werden.
Die Grundlagen des Baukastens basieren auf den Ergebnissen unterschiedlichster Projekte. Teams aus Architekten, Pädagogen, Eltern und Schülern stellten sich die zentralen Fragen: Wie soll Schule künftig aussehen? Welche neuen pädagogischen Konzepte gibt es und welche Raumanforderungen ergeben sich daraus? Das Ergebnis: Der ALHO Schulbaukasten reicht von der einfachen, klassischen Flurschule über Lern- und Teamhäuser mit sehr individuellen Raumkonzepten bis hin zur hochkomplexen Clusterschule. Und da die Fassade als Visitenkarte eines Gebäudes dessen Qualität für den Betrachter am deutlichsten transportiert, stehen auch im Modulbau alle Gestaltungsmöglichkeiten, die konventionelle Bauweisen bieten, offen.
Neben der – dank des Baukastenprinzips – effizienten Planung erfährt der Schulbau in Modulbauweise eine zusätzliche Beschleunigung im Baugenehmigungsprozess durch typengeprüfte Statiken, ausgereifte Detaillösungen und Brandschutzkonzepte.
Die unter strengen Qualitätskontrollen im ALHO Werk hergestellten Module kommen mit einem Vorfertigungsgrad von ca. 70 % auf die Baustelle, werden innerhalb weniger Tage montiert und anschließend ausgebaut – ohne große Belästigung der Schüler, Lehrer und Anwohner durch Lärm, Staub und Schmutz. Schon nach ca. 2-3 Monaten Bauzeit vor Ort kann das Gebäude in Betrieb genommen werden.
Neugierig? Dann laden Sie sich unseren Flyer zum Modulbaukasten für Schulen hier runter. Oder kontaktieren Sie einen unserer Berater – hier finden Sie Ihren persönlichen Ansprechpartner für den Schulbau bei ALHO.
Telefon: +49 2131 29837-11
Mobil: +49 170 8045213
E-Mail: sebastian.trautermannnoSpam@alhonoSpam.com
Teilen Sie diesen Artikel gerne